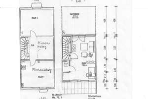
Gepflegtes Reihenmittelhaus mit Dachterrasse in München - Trudering | Ernst-Hochholzer-Straße 25, 81825 Gartenstadt Trudering, München | Somantic | Somantic
Gepflegtes Reihenmittelhaus mit Dachterrasse in München - Trudering
Ernst-Hochholzer-Straße 25, 81825 Gartenstadt Trudering, München