Somantic
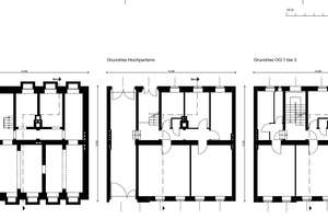
Vom Eigentümer: MFH mit Baugenehmigung, 990m² Wohnfl. mgl. - Keine Auflagen: GmBH Verkauf | Die vollständige Adresse der Immobilie erhältst du vom Anbieter., 13347 Wedding, Berlin | Somantic | Somantic