Somantic
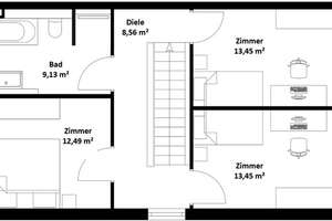
Nähe Velten, Hennigsdorf, Falkensee: NKM ab 13,64 €/ m² inkl. Gartenanteil und Stellplatz | von-Hake-Straße 9, 14621 Schönwalde-Glien | Somantic