Somantic
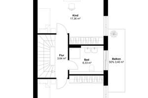
Ruhige Toplage Großhadern-Blumenviertel (600m U-Bahn): REH 4 Schlafzimmer + Homeoffice (Haus 3) | Die vollständige Adresse der Immobilie erhältst du vom Anbieter., 81377 Großhadern, München | Somantic | Somantic