Somantic
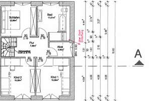
Neuwertiges Reihenhaus mit 4 Zimmern in Munkbrarup | Sackgassenlage 0, 24960 Munkbrarup | Somantic