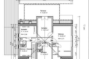
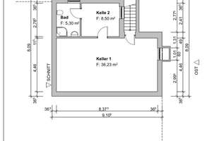
Wasserburgerlandstr 175, 81827 Waldtrudering, München
Kartenansicht wird geladen...
Diese Immobilie wurde mehrfach inseriert oder auf verschiedenen Plattformen angeboten.
Bewertungsdaten werden geladen...
Ich kann Ihnen detaillierte Fragen zu dieser Immobilie beantworten.
Anmeldung erforderlich
Registrieren oder anmelden, um zu chatten.