Somantic
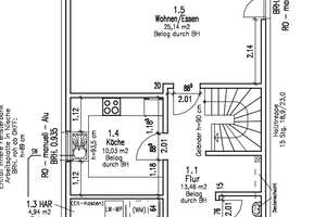
Einfamilienhaus – Erstbezug 2026 – energieeffizient & modern | Die vollständige Adresse der Immobilie erhältst du vom Anbieter., 12621 Kaulsdorf, Berlin | Somantic | Somantic