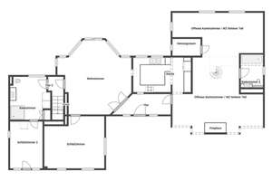
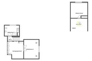
Die vollständige Adresse der Immobilie erhältst du vom Anbieter., 26935 Stadland
Die Informationen zum Energieausweis sind gemäß der Energieeinsparverordnung (EnEV) angegeben.
1.889 €
22668 €
5.15%
Berechnet als (Monatliche Kaltmiete × 12) ÷ Kaufpreis
Die Mietrendite ist eine wichtige Kennzahl für Immobilieninvestoren. Sie gibt an, wie viel Prozent des investierten Kapitals jährlich durch Mieteinnahmen zurückfließen.
Bitte beachten Sie, dass diese Berechnung vereinfacht ist und keine Nebenkosten, Instandhaltungskosten, Steuern oder Finanzierungskosten berücksichtigt.
Kartenansicht wird geladen...
Diese Immobilie wurde mehrfach inseriert oder auf verschiedenen Plattformen angeboten.
Bewertungsdaten werden geladen...