Somantic
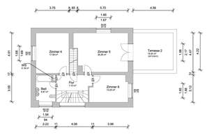
CA. 379 m² GRUNDFLÄCHE - PARKÄHNLICHES GRUNDSTÜCK MIT BEBAUUNGSPOTENTIAL - MIT GARAGE, KAMIN & SAUNA | Die vollständige Adresse der Immobilie erhältst du vom Anbieter., 14163 Zehlendorf, Berlin | Somantic | Somantic