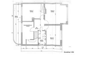
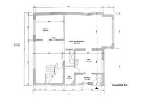
Großzügiges EFH (ca. 250 m²) mit Garten, Balkon & unverbaubarem Blick ins Grüne – 5 Min. zur S-Bahn | Die vollständige Adresse der Immobilie erhältst du vom Anbieter., 55283 Nierstein | Somantic | Somantic
Großzügiges EFH (ca. 250 m²) mit Garten, Balkon & unverbaubarem Blick ins Grüne – 5 Min. zur S-Bahn
Die vollständige Adresse der Immobilie erhältst du vom Anbieter., 55283 Nierstein