Somantic
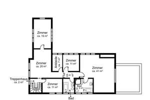
Großzügiges Einfamilienhaus mit Potential im Alt-Hahnwald | Die vollständige Adresse der Immobilie erhältst du vom Anbieter., 50996 Hahnwald, Köln | Somantic | Somantic