Leider ist nicht immer eine gute Lagebeschreibung der Immobilie veröffentlicht. Kein Problem!!! Fordern Sie jetzt Ihr ausführliches Expose gratis, unverbindlich & direkt, durch an.
Gleiche Immobilie
Diese Immobilie wurde mehrfach inseriert oder auf verschiedenen Plattformen angeboten.
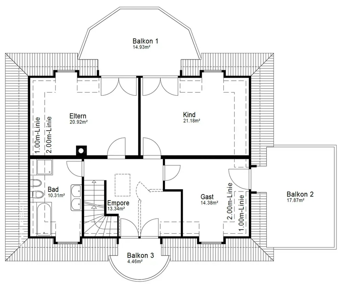
Architekten-Landhaus in Bestlage Wohldorf-Ohlstedt | 198 m² | Südgrundstück | Kamin & Sauna