Somantic
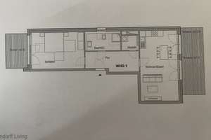
Barrierefrei Findorff Weidedamm 2Zi Terrasse | Göttinger Straße 11, 28215 Weidedamm, Bremen | Somantic | Somantic