Somantic
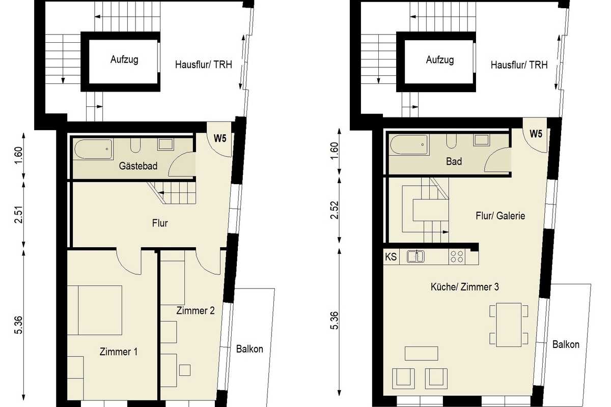
Sa. Termin - Einzugsbereit – 📞 0172-326 11 93 – Moderne Maisonettewohnung im Neubau, Friedrichshain | Berlin | Somantic | Somantic