Somantic
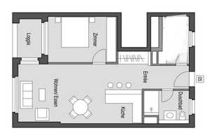
3 Zimmer-rooms - luxury furnished-möbliert - Miele-Küche - Potsdamer Platz - HIGH-PARK - Wlan | Gabriele-Tergit-Promenade 21, 10963 Berlin | Somantic | Somantic