Somantic
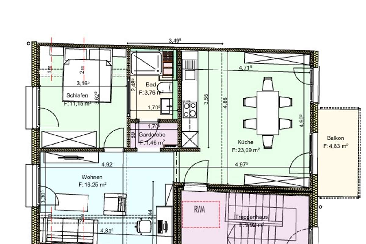
Neubau-Grün-Zentral- 2,5 Zimmerwohnung mit Loft | Friedrich-Willhelm-Strasse 45, 54290 Süd, Trier | Somantic | Somantic