Somantic
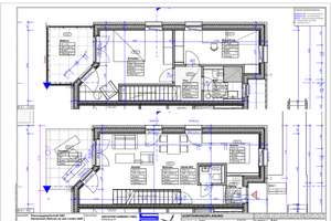
Schöne Maisonette Wohnung in der Klimaschutzsiedlung | Die vollständige Adresse der Immobilie erhältst du vom Anbieter., 59368 Werne | Somantic | Somantic