Somantic
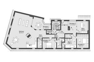
WOHNEN ÜBER DEN DÄCHERN - Helles Loft mit Lift direkt ins Zuhause | Blutenburgstraße 37, 80636 St. Vinzenz, München | Somantic | Somantic