Somantic
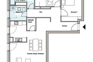
Großzügige Etagenwohnung mit zwei Balkonen, moderner Einbauküche und Tageslichtbad | Gutleutstraße 289, 60327 Gutleutviertel, Frankfurt am Main | Somantic | Somantic