Somantic
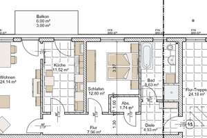
2 Raumwohnung in Eberswalde im Erdgeschoss | Rudolf - Breitscheid Straße 31, 16225 Eberswalde | Somantic | Somantic