Somantic
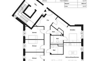
Exklusive 5-Zimmer-Wohnung mit Einbauküche und Loggia im Neubauquartier Deiker Höfe in Stockum! | Am Hain 53, 40468 Stockum, Düsseldorf | Somantic | Somantic