Somantic
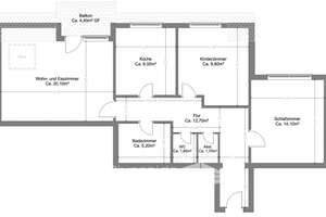
Helle 3-Zimmer-Wohnung im 2. OG mit eigener Garage - komfortables Wohnen garantiert | Die vollständige Adresse der Immobilie erhältst du vom Anbieter., 28197 Rablinghausen, Bremen | Somantic | Somantic