Somantic
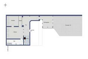
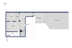
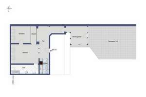
Dachgeschosswohnung mit Panoramablick und großer Terrasse im Herzen Leipzigs | Die vollständige Adresse der Immobilie erhältst du vom Anbieter., 4105 Zentrum-Nord, Leipzig | Somantic | Somantic