Somantic
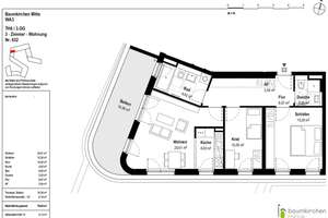
Traumhafte 3-Zi-Wohnung mit 2 Bädern, EBK und Süd-West-Balkon | Hermann-Weihnhauser-Str. 70, 81673 Echarding, München | Somantic | Somantic