Somantic
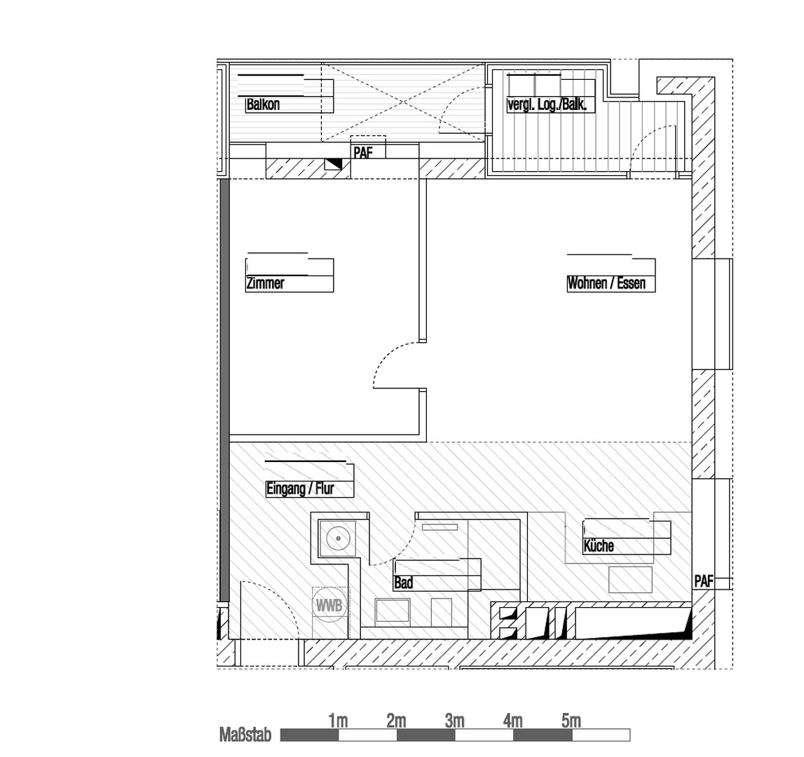
ICONIC LIVING: Exklusive, voll möblierte Skyline-Residenz im Wahrzeichen Frankfurts – Henninger Turm | Frankfurt | Somantic | Somantic