Somantic
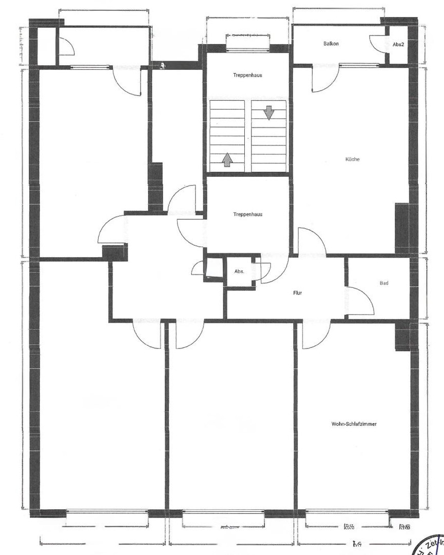
Schöne 1.5 Zi.-Wohnung mit separatem Küchenbereich mit Theke, modernem Duschbad und Balkon | Düsseldorf | Somantic | Somantic