Somantic
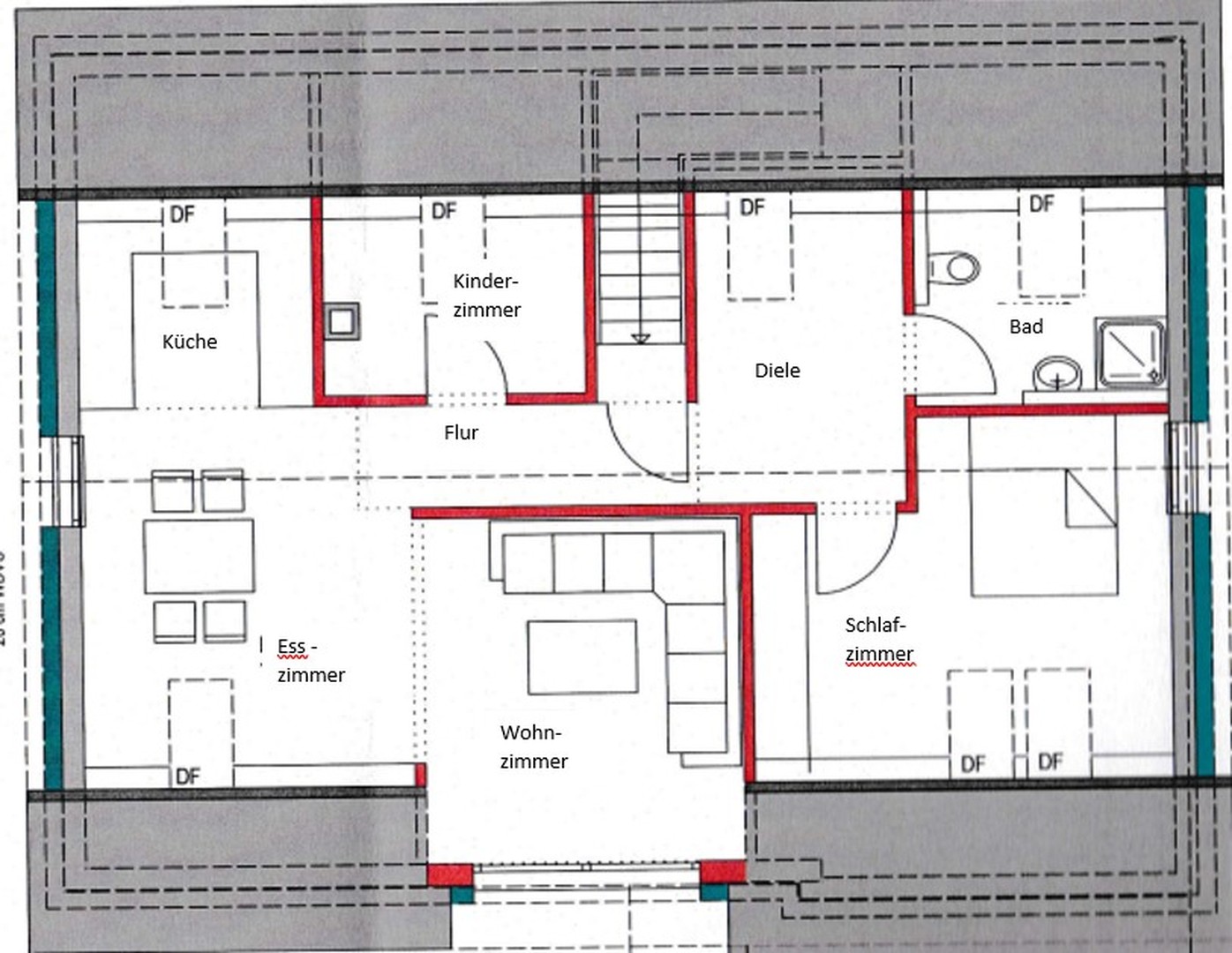
Hochwertige, neue 90qm Wohnung | Frickenhausen | Somantic | Somantic