Somantic
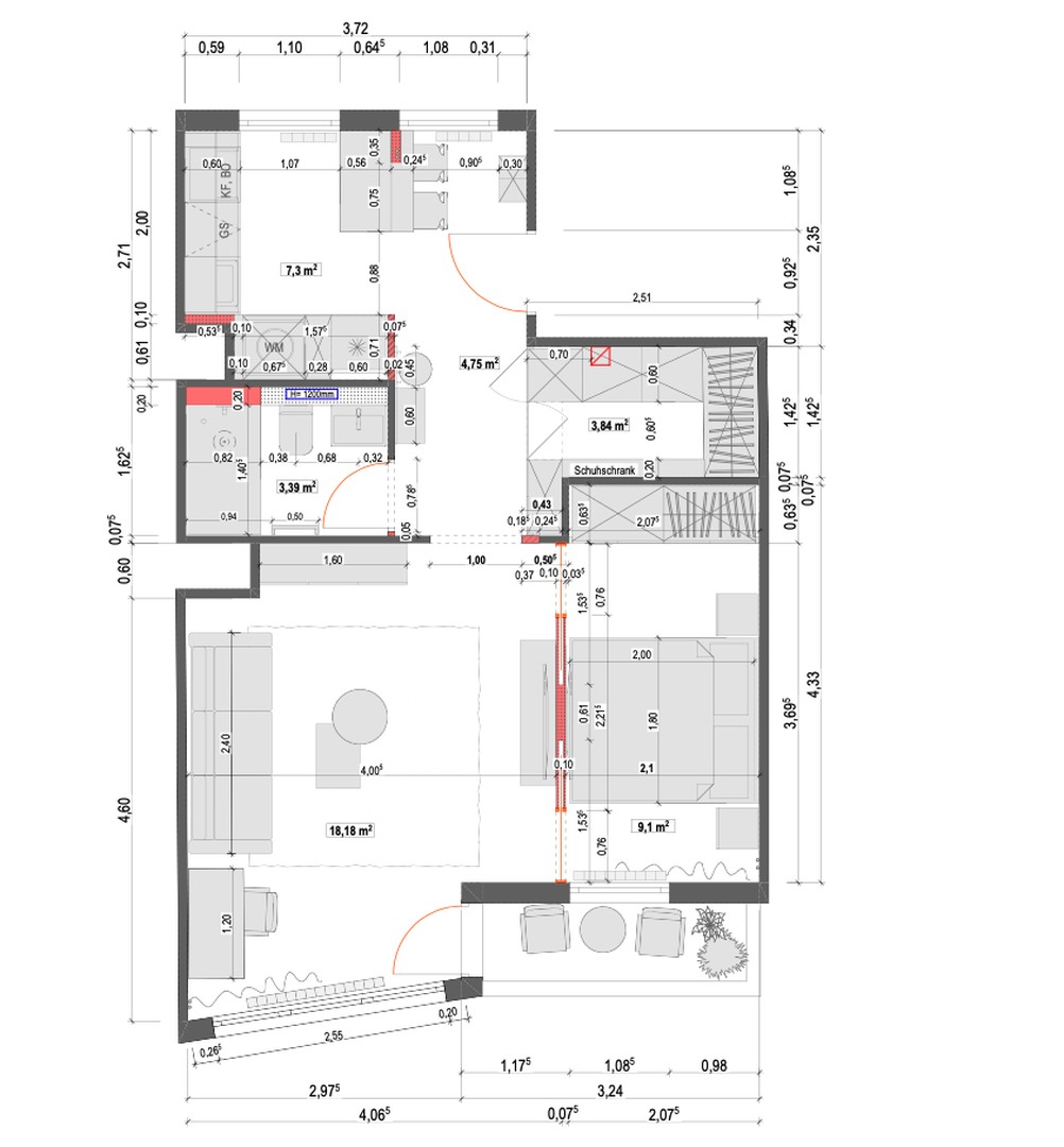
Erstbezug 2026 | Designer-Küche | Balkon | Ankleide | ruhig | teilmöbliert | mit Anmeldung | Berlin | Somantic | Somantic