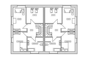
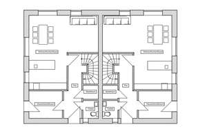
Die vollständige Adresse der Immobilie erhältst du vom Anbieter., 25866 Mildstedt
Kartenansicht wird geladen...
Diese Immobilie wurde mehrfach inseriert oder auf verschiedenen Plattformen angeboten.
Bewertungsdaten werden geladen...
Ich kann Ihnen detaillierte Fragen zu dieser Immobilie beantworten.
Anmeldung erforderlich
Registrieren oder anmelden, um zu chatten.