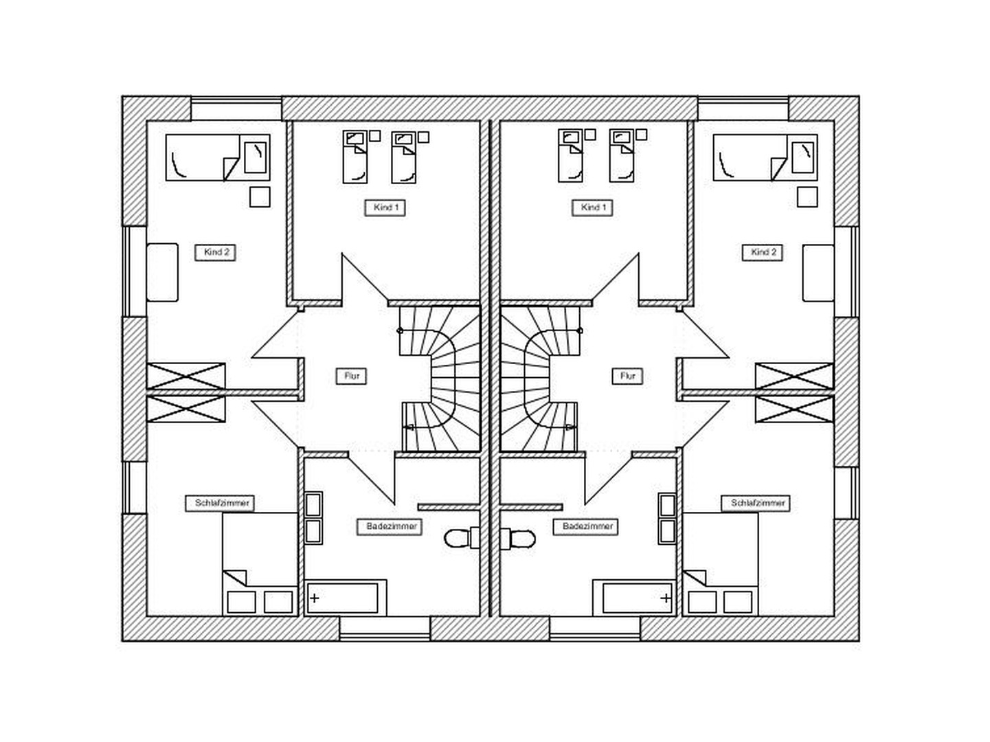
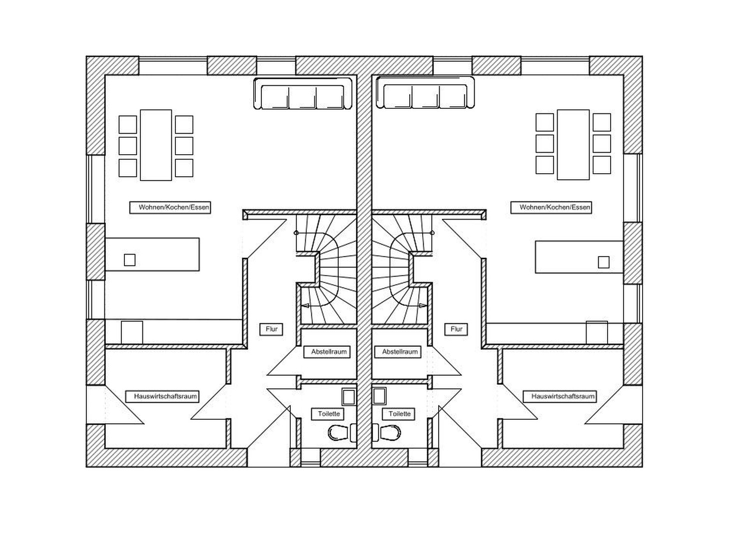
Somantic
Doppelhaushälfte Neubau KfW 40 Erstbezug | Mildstedt | Somantic | Somantic