Somantic
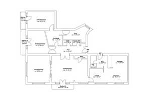
Altbauliebe mit separater Gästewohnung | Leibnizstraße 43, 10629 Berlin | Somantic | Somantic