Somantic
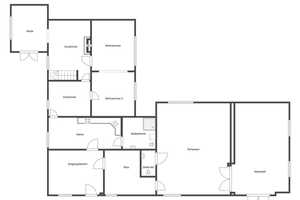
Natur pur: Großes Grundstück mit charakterstarkem EFH sucht neuen Glanz | Diepholz (Kreis) | Somantic | Somantic