Somantic
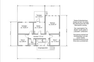
Einfamilienhaus im Bungalowstil auf ruhigem Einzelgrundstück in Berlin Rosenthal! | Die vollständige Adresse der Immobilie erhältst du vom Anbieter., 13158 Rosenthal, Berlin | Somantic | Somantic