Somantic
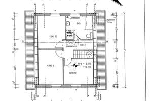
Ihr neues Zuhause in Gatow: 5 Zimmer, Gäste-WC und ruhige Wohnlage | Die vollständige Adresse der Immobilie erhältst du vom Anbieter., 14089 Kladow, Berlin | Somantic | Somantic