Somantic
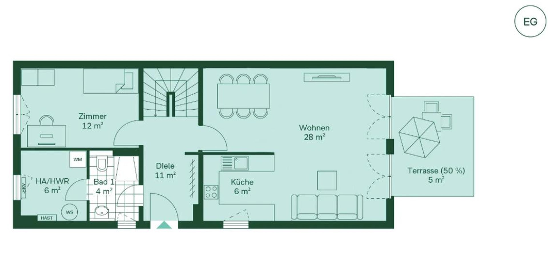
Exklusive Neubau-Doppelhaushälfte | 140 m² | Garten, Terrasse & direkte S-Bahn-Anbindung nach Berlin | Schöneiche bei Berlin | Somantic | Somantic