Somantic
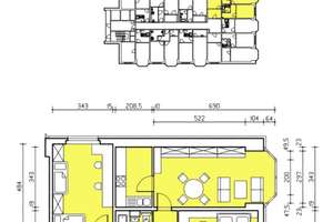
Geräumige 3 Zimmerwohnung - Möglichkeit des betreuten Wohnens im Haus | Postelwitzer Str. 2, 1277 Gruna, Dresden | Somantic | Somantic