Somantic
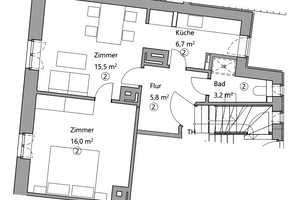
Schöne Wohnung mit EBK - Erstbezug nach Sanierung | Rotenbergstraße 38, 70190 Stuttgart | Somantic | Somantic