Somantic
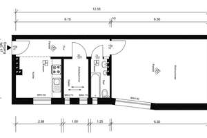
Nahe Savignyplatz:Bezugsfreie und ruhige Altbauwohnung im Seitenflügel | Bleibtreustr. 7, 10623 Charlottenburg, Berlin | Somantic | Somantic