Somantic
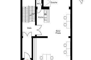
Kernsaniertes Stadthaus mit Top-Potenzial | Die vollständige Adresse der Immobilie erhältst du vom Anbieter., 40237 Düsseltal, Düsseldorf | Somantic | Somantic