Somantic
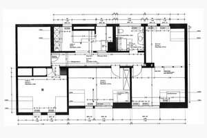
Stuttgart-Mitte | Klimaanlage | Moderne 3-Zi.-Whg. nähe Gerber – sofort frei & WG-geeignet | Gerberstraße 9, 70178 Rathaus, Stuttgart | Somantic | Somantic