Somantic
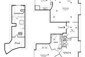
Hochwertig möbliertes Zuhause in Toplage! | Die vollständige Adresse der Immobilie erhältst du vom Anbieter., 20144 Harvestehude, Hamburg | Somantic | Somantic