Somantic
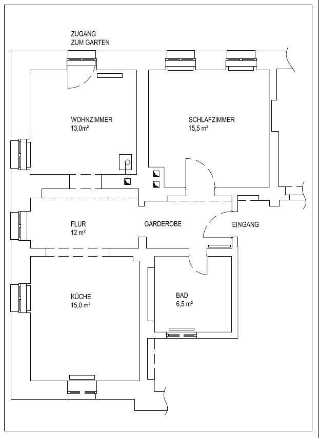
Möbliert/Furnished 2-Zimmer Souterrain Apartment mit Terrasse in Dresden-Äußere Neustadt | Dresden | Somantic | Somantic